Rénovation d’un studio de 34m²
Comment aménager son espace en fonction de ses besoins?
Afin de bien vivre dans son espace il est important de définir ses espaces en fonction de son mode de vie. De cette réflexion découle l aménagement, les dimensions et le mode de réalisation.
Emplacement : Roissy en brie
Superficie : 34m²
Situation : rez de chaussée avec jardinet
A. L’état des lieux et les besoins.
1. Le besoins, le budget et les points clés.
Pour ce projet le client avait des besoins bien spécifiques qui nous a permis de déterminer des éléments d’aménagement et d’organisation essentiels.
Tout d’abord il fallait pouvoir avoir une chambre séparée et pouvoir la masquer aux invitées si besoin. L’entrée devait également pouvoir se fermer afin de ne pas dévoiler l’appartement de la porte d’entrée.
Le client travail de chez lui et avait besoin d’un bureau qui pouvait être modulable mais qui devait impérativement ne pas se trouver contre un mur et duquel la télévisons était visible.
Et enfin la cuisine manquait de plan de travail et un coin repas pouvant recevoir du monde était important.
Autre point important de ce projet était un budget limité ce qui voulait dire que nous ne pouvions pas sélectionner des meubles sur mesures et trouver des solutions adaptées.
2. L’étude de l’existant
Partant de là nous avons étudier les plans de l’existant afin de voir ce que nous pouvions garder ou non.
La porte de séparation ainsi que les placards de l’entrée étaient conformes aux demandes du client donc pouvaient rester. Pour le reste nous avons décidé de ne modifier qu’une seule cloison, celle de la chambre.
Pour les matériaux le nouveau sol sera reposé sur l’ancien et nous conservons évier et électroménagers
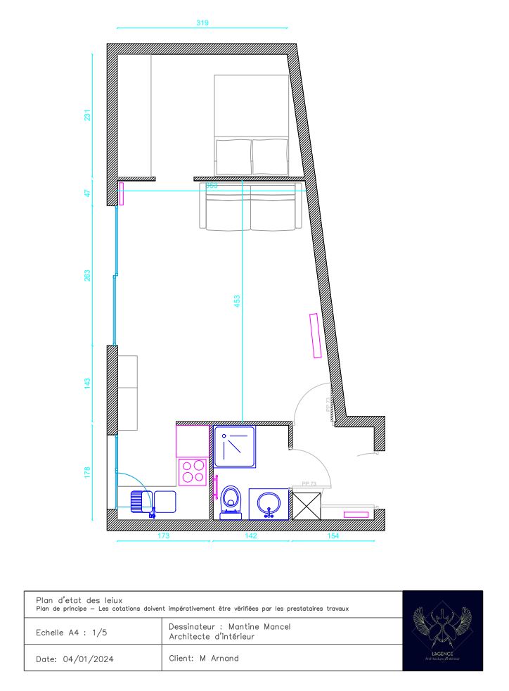
Plan d’état des lieux
Photos de l’espace existant
3. Les mesures de bases
Dans un projet d’architecture il y a des mesures de base qui sont essentielles et avec lesquelles nous devons composer.
Ici le client avait besoin de rangements pour ses vêtements et ses livres. Les vêtements s’ils se trouvent sur cintres doivent avoir une place de 60 cm ce qui correspond à la largeur d’un cintre et d’une marge de manipulation.
Pour la cuisine nous devons garder un écart de 70 cm entre les meubles afin de pouvoir se mouvoir et travailler confortablement. La hauteur des meubles haut doit être à 60 cm du plan de travail pour ne pas gêner lors de la préparation sur le plan de travail.
Et enfin les passages doivent être de 60 cm minimum autour du lit permettant une circulation fluide (hors appartement pmr)
B. Le cheminement sur le projet d’aménagement.
1. Les inspirations.
Pour ce projet nous avons réfléchis à la meilleure façon de positionner le bureau.
Nous avons envisagé plusieurs options comme le bureau mural ou d’un meuble mais cela ne répondait pas à la demande du client de pouvoir voire la télévision et de pas être face à un mur.
1. la redoute / 2. Jessica Venancio / 3. et 4. made in design
Nous avons également réfléchi à un bureau escamotable sur le côté d’un meuble mais cela ne permettait plus de circuler sans devoir escaler le lit.
Nous avons filament opté pour un bureau cloison qui maximise l’espace et répond aux besoins du client.
2. Les différents aménagements
Comme vu au dessus nous avons essayé de positionner le bureau dans un meuble avec le plan de travail rétractable et le lit au milieu de la pièce afin de pouvoir y accéder des deux côtés.
Seulement ce plan de l’espace comportait des aménagements qui ne convenaient pas avec les besoins du client comme avoir des rangements suffisants et avait un « défaut » qui était que le bureau une fois ouvert bloquait la circulation si vous vous trouviez assis du côté chambre. C’est pour cela que nous avons changé le sans du lit et avons ajoutés des rangements ainsi qu’un bureau cloison.
Travail de plans
C. le projet final
Voici le projet que nous allons proposer à notre client.
Nous avons conservé l’entrée dans son aménagement et rafraîchit le papier peint, agrandit la cuisine et créé un plan de travail qui court le long du salon. Ce plan permet de positionner la télévision mais surtout il vient abriter une console rétractable qui vient s’ouvrir pour recevoir du monde et se fermer complètement et disparaitre dans cette alcôve pour profiter du reste de la pièce.
Le bureau est complété par des meubles de rangements qui servent côté salon à ranger des livres et décorations et côté chambre aux rangements de bureau. Des meubles penderies viennent compléter l’ensemble et des rideaux assortis au papier peint servent autant pour l’intimité que pour les rangements.
C’est autour de ces besoins que viennent s’articuler la décoration et le mobilier.
